Leave a Message

Thank you for your message. We will be in touch with you shortly.

4352 IRIS ST N

$339,000
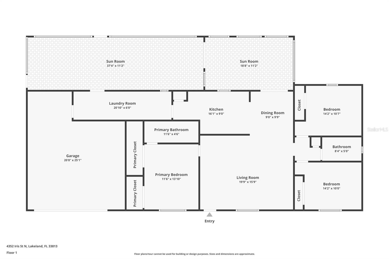
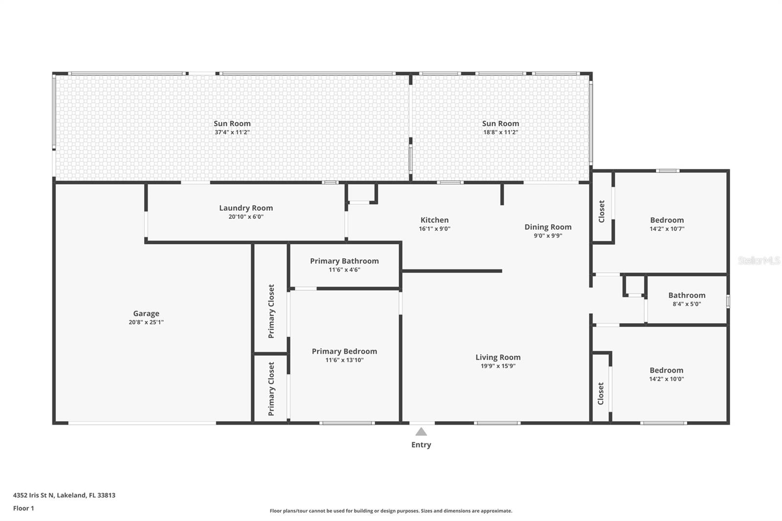
4352 IRIS ST N, LAKELAND, FL 33813
4352 IRIS ST N

4352 IRIS ST N

$339,000

Under contract-accepting backup offers. *MULTIPLE OFFERS. HIGHEST AND BEST BY 5PM* Welcome to this charming and move-in ready residence located in the desirable Fallin Crest Subdivision of South Lakeland, where you can enjoy the benefits of living in a peaceful community with NO HOA fees! This lovely 3-bedroom, 2-bathroom home, complete with a versatile bonus room, is ideal for families and anyone seeking extra space. As you step inside, you'll be greeted by a spacious living room that flows seamlessly into an inviting open floor plan, perfect for entertaining guests or enjoying family time. The heart of this home is the recently updated kitchen, which showcases elegant granite countertops, modern stainless steel appliances, and ample cabinetry. There's no shortage of counter space, making meal preparation a delight. Just off the kitchen, a generously sized combined laundry and utility room offers plenty of additional pantry storage, keeping your home organized and clutter-free. Retreat to the tranquil primary bedroom, featuring an ensuite bathroom equipped with a walk-in shower--a perfect spot to unwind after a long day. The two additional bedrooms are thoughtfully situated on the opposite side of the home, ensuring privacy and comfort for family members or guests. They share a second bathroom conveniently located between them. One of the standout features of this home is the bonus room positioned off the formal dining area. This flexible space can easily serve as a home office, a game room, or a cozy reading nook--whatever best suits your lifestyle! Step outside through the brand new French doors and into your screened-in patio, where you can enjoy the outdoors without worrying about insects. The large, fenced-in yard provides ample space for pets, or even a garden, and there's also a shed for additional storage of tools and outdoor equipment. With a roof that was replaced in 2022, you can rest easy knowing that this home is well-maintained. Enjoy the country-like ambiance while being just minutes away from essential amenities, including Publix, a variety of restaurants, shopping options, and the Polk Parkway for an easy commute to Tampa and Orlando. Don't miss the opportunity to make this wonderful house your new home--schedule a viewing today and experience all that this property has to offer!
John Hubbert Jr.
John Hubbert Jr. Contact

Features & Amenities

Interior

Total Bedrooms 3
Total Bathrooms 2
Full Bathrooms 2
Laundry Room Inside, Laundry Room
Flooring Carpet, Laminate, Tile
Appliances Dishwasher, Range, Refrigerator
Other Interior Features Ceiling Fans(s), High Ceilings, Open Floorplan, Solid Surface Counters, Split Bedroom, Window Treatments

Exterior

Stories 1
Garage Space 2.0
Water Source Public
Utilities BB/HS Internet Available, Cable Available
ROOF Shingle
Heat type Central
Air Conditioning Central Air
Sewer Septic Tank
Substructure Slab
Other Exterior Features French Doors, Storage

Area & Lot

Status Pending
LIVING SPACE 1,878 Sq.Ft.
TOTAL AREA 2,564 Sq.Ft.
LOT SIZE 0.34 Acres
MLS® ID L4956213
Type Residential
Year Built 1986

Financial

SALES PRICE $339,000
REAL ESTATE TAXES $4,364/yr
View Virtual Tour
image

Schedule a Showing

We would love to show you our beautiful property. Please select your preferred date and time below. An agent will be in touch shortly to confirm your appointment.

Schedule a Showing

We would love to show you our beautiful property. Please select your preferred date and time below. An agent will be in touch shortly to confirm your appointment.

Thank you for your interest in 4352 IRIS ST N, LAKELAND, FL 33813. We are reviewing your request and will be in touch shortly!

Mortgage Calculator

Estimate your monthly mortgage payment, including the principal and interest, property taxes, and HOA. Adjust the values to generate a more accurate rate.

All estimates are provided for informational purposes only. Actual amounts may vary.
$0,000 Your Payment 20 15 65
$0,000 Your Payment

Work With Us

At Team Hubbert, we combine expert guidance, market insight, and a personal touch to make your real estate journey smooth, strategic, and successful—because you deserve a team that works as hard as you do.

CONTACT US